არქიტექი
სარემონტო მომსახურება
მთავარი
სერვისი
სახლის რემონტი
ოფისის რემონტი
კერძო სახლის რემონტი
რემონტი ბათუმში
ინტერიერის დიზაინი
ნამუშევრები
ფასები
ჩვენ შესახებ
გუნდი
ჩვენ შესახებ
რატომ ჩვენ
კარიერა
ბლოგი
კონტაქტი
ნამუშევრები
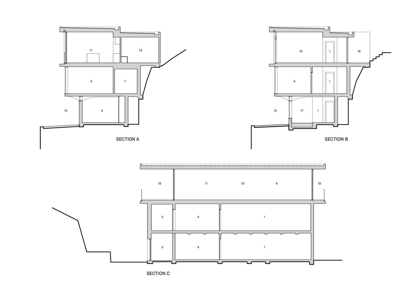
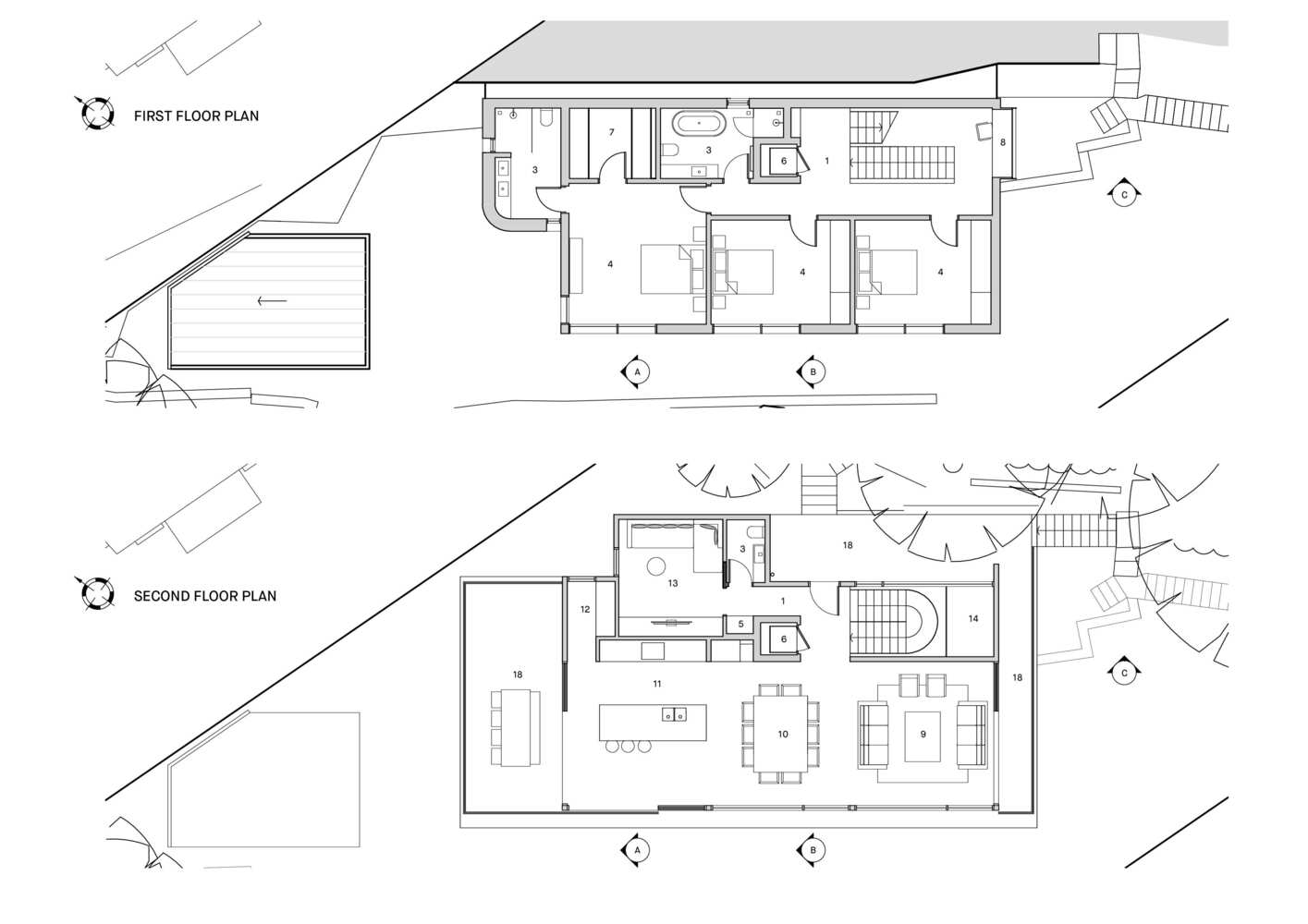
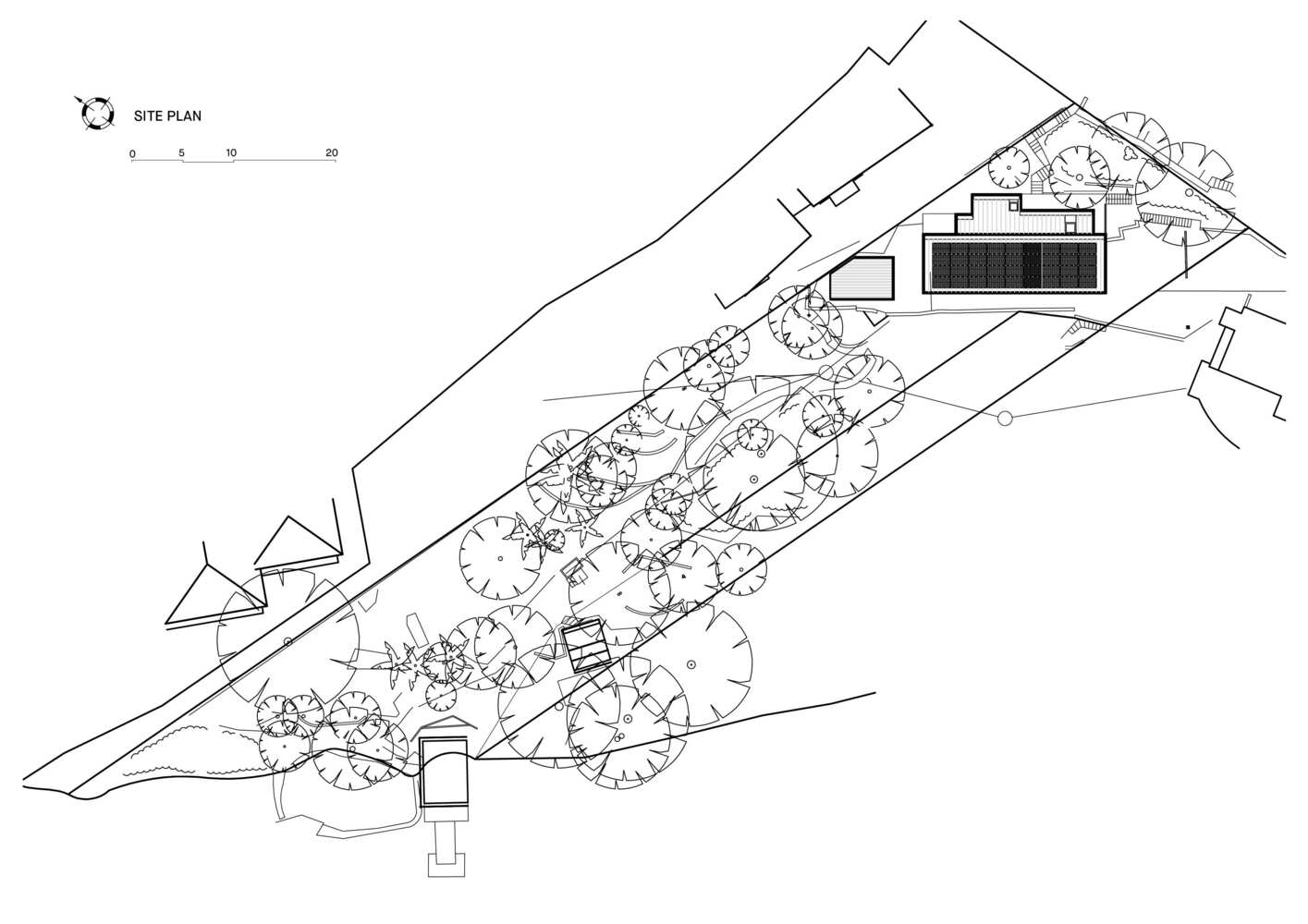
საკუთარი სახლი კახეთში
სამუშაოს ხანგრძლივობა
45
დღე
მოცულობა
340
მდებარეობა
საკუთარი სახლი კახეთში
No items found.